自动化停车系统如何重新利用城市空间?
城市正在缓缓重塑自身面貌。随着气候目标的设定、生活方式的转变以及远程工作模式对日常节奏的重塑,适宜步行的街道、便于骑行的网络以及多功能混合社区正逐渐成为城市规划的重点。然而,即便这些以人为本的理念正日益受到重视,大多数城市仍高度依赖私家车,这使得我们正在规划的城市未来与当下依然存在的出行习惯之间产生了矛盾。
这种矛盾促使建筑师和开发商重新思考城市规划中最棘手的问题之一:停车。多功能混合用途建筑如雨后春笋般涌现,将住宅、工作场所和服务设施紧凑地整合在一起,每一平方米的空间都需发挥更大效用。如今,挑战已不再仅仅是车辆停放的位置问题,而是如何以一种支持高密度、宜居性和长期适应性的方式整合停车设施 —— 让城市在发展演变过程中,避免被车辆主导其形态。
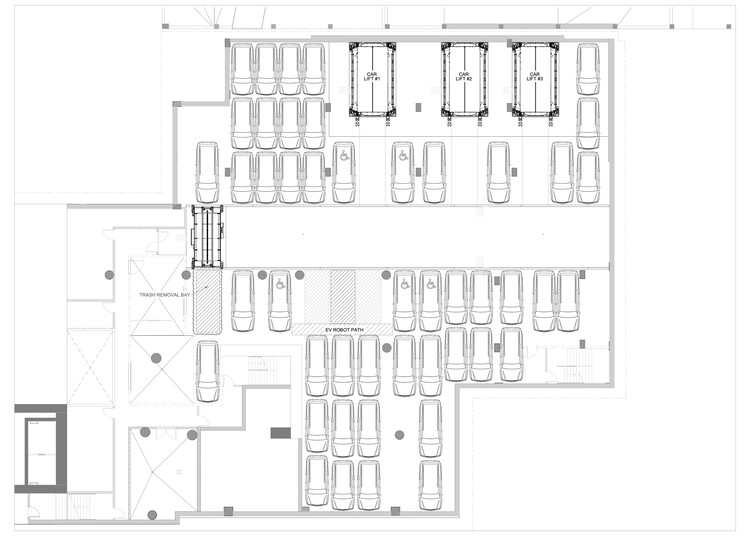
有限的土地空间以及私家车的持续存在,促使建筑师和开发商探索新方法,力求以更少的资源 ——更少的土地、更短的时间和更低的成本,实现更多功能,同时仍满足日益增长的灵活性和可持续性需求。在奥克兰市中心,所罗门·科德威尔·布恩兹(Solomon Cordwell Buenz)建筑事务所的建筑师们与开发商贝林公司(Behring Companies)携手,在 39 层高的多功能塔楼 1900 Broadway 项目中采用了一种非传统解决方案来应对这一挑战:自动化停车系统。通过采用优特隆(Utron)提供的紧凑型系统,该建筑将停车占地面积缩减了 60% 以上,通过回收通常被坡道和行车通道占据的空间,实现了效率最大化,并将这些空间转而用于居民配套设施、零售店面和共享办公区域。
通过设计优化土地利用
然而,在密集的城市中心,停车依然不可或缺,但将大片土地专门划作停车用途可能会付出代价。过大的停车占地面积可能会挤占住宅、公共空间或商业活动的用地,而过度建设的停车设施则会加剧对汽车的依赖,引发交通拥堵和环境污染。如今,城市并未选择通过扩大停车设施规模来匹配不断增长的汽车保有量,而是尝试采用管理需求和支持出行多样性的策略:建设规模更小、效率更高的停车库,推行共享停车安排,以及采用自动化停车系统,如全自动化、拼图式和堆叠式停车系统。这些方法能够在必要时仍为车辆提供停放空间的同时,使城市土地得到更高效的利用。
这种重新思考与多功能混合用途开发的兴起紧密契合,后者不仅是对住房需求的回应,更是一种推动城市更可持续发展的策略。多功能混合用途项目将住宅、商业和公共功能整合于同一地块内,打造出紧凑、适宜步行的社区。尤其是垂直混合用途建筑,让建筑师能够将不同功能进行叠加,比如在零售空间之上设置住宅,在配套设施之上打造共享办公区,从而最大限度地发挥有限土地的效用。通过这种功能整合的方式,这些开发项目支持减少依赖汽车的生活方式,并体现了以高密度、以人为本的城市设计这一更广泛目标。
密集型城市中的停车问题再审视
传统停车库往往会占据宝贵空间,而这些空间本可用于服务居民、打造公共设施或建设绿地。1900 Broadway 大楼采用的自动化停车系统,为如何应对这些挑战提供了一个范例。优特隆(Utron)Pace 系统采用“穿梭车/货架与轨道”解决方案,将车辆停放在两层空间内,每层可实现最深四辆车的停放。该系统配备三个出入口泊位、三台汽车升降机以及两套穿梭车系统,可高效完成车辆的存取;同时,集成式电动汽车充电机器人让用户只需在泊位插上充电插头,车辆便会被自动引导至充电站。基于应用程序的控制方式让用户能够追踪车辆状态、管理充电进程并远程取车,全程无需工作人员协助,且能确保车辆即时交付、随时可驾驶。
优特隆(Utron)等自动化停车系统将 100 个停车位压缩至两层空间内,从而释放出更多空间,让停车库不再仅仅是车辆的存放之所。在 1900 Broadway 大楼中,这些重新利用的楼层如今被用于打造共享配套设施,如休息室、共享办公区、健身空间以及观景区域,展现了精心设计与先进技术如何让停车设施成为建筑中富有成效的一部分,而非限制性因素。
在全球范围内,即便对绿色宜居城市空间的需求不断增长,但私家车保有量居高不下或持续攀升的城市中,此类解决方案正变得愈发必要。以美国为例,超过 90% 的家庭拥有车辆,且在 2018 年至 2022 年间,车辆注册量增长了约 3.5%,这表明即便城市正朝着高密度、多功能混合用途开发的方向发展,停车问题仍是一个重要的考量因素。
这对城市规划产生的更广泛影响显而易见。通过缩减停车占地面积,城市和开发商能够腾出空间用于住房、公共设施或绿色基础设施建设,让建筑和社区在保持高密度的同时更显开阔通透。自动化停车系统的巧妙融入表明,曾被视为纯粹功能性的基础设施,如今也能为项目的空间品质和社会效益做出贡献。
在城市化迅猛发展的时代——据预测,到 2060 年,全球建筑总面积或将翻倍——自动化停车等智能系统将日益深刻地影响城市的规划、设计及居住方式。奥克兰 1900 Broadway 塔楼所采用的这类解决方案表明,通过精心设计和恰当策略,开发商能够在不妥协的前提下应对当下挑战:空间限制、可持续发展以及用户期望。借助自动化停车解决方案,停车问题可从实际负担转变为城市生活中不可或缺的一部分,助力城市变得更加紧凑、适宜步行,并更贴合居民需求,从而打造出以人为本、而非仅为汽车服务的城市。
